Facebook-f
Instagram
kontakt@projektycieszyn.pl
+48 503 601 479
Strona główna
O nas
Usługi
Projekty
FAQ
Kontakt
QuickSmart Home
Zamarskie zacisze
Strona główna
O nas
Usługi
Projekty
Kontakt
FAQ
QuickSmart Home
Zamarskie Zacisze
Facebook-f
Instagram
kontakt@projektycieszyn.pl
+48 503 601 479
Strona główna
O nas
Usługi
Projekty
FAQ
Kontakt
QuickSmart Home
Zamarskie zacisze
Podcieniowy – 91,50 m²
Home
portfolio
Podcieniowy – 91,50 m²
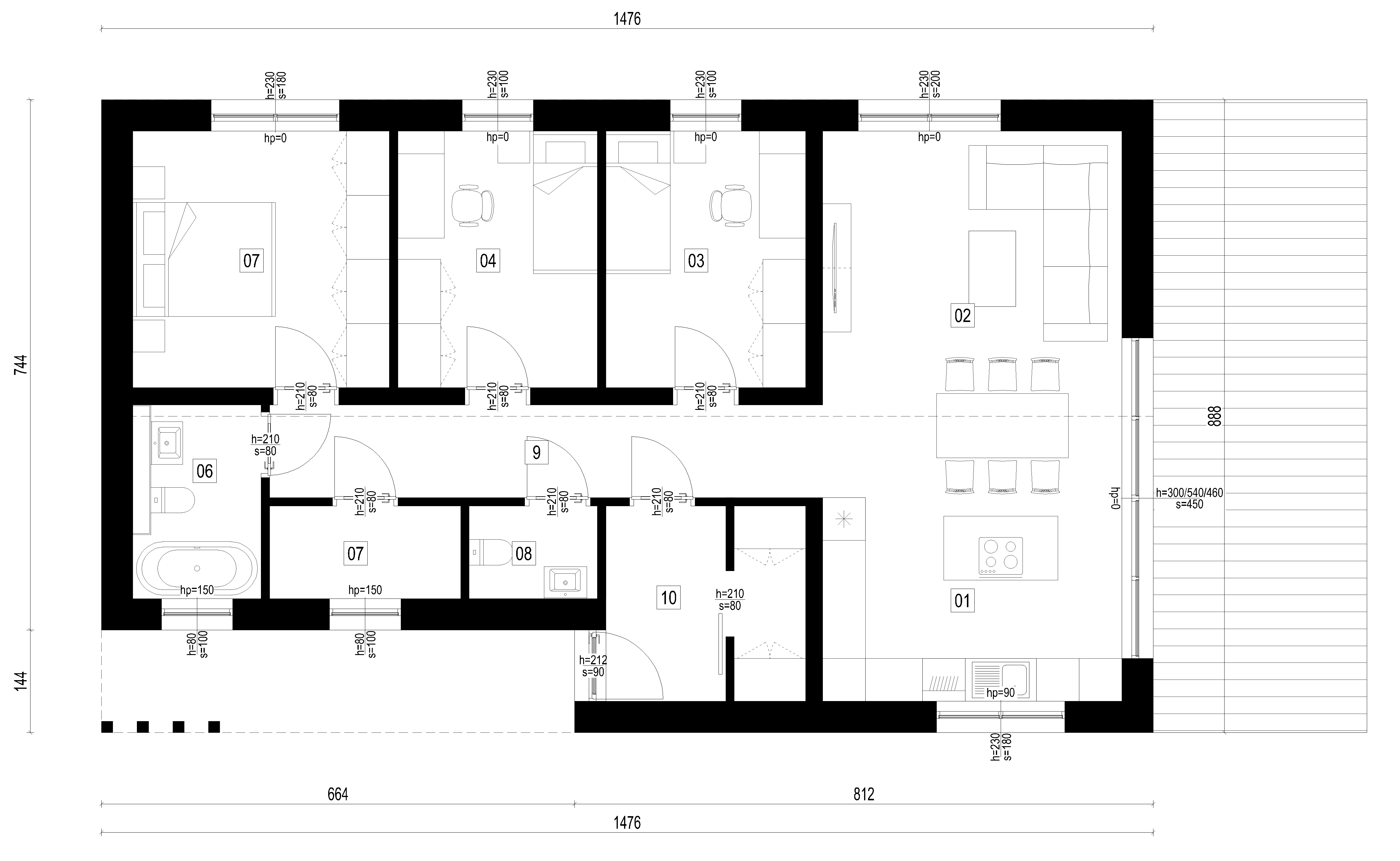
Parter
Powierzchnia całkowita
94,98 m²
01. Kuchnia
12,01 m²
02. Salon + jadalnia
21,59 m²
03. Pokój 1
10,08 m²
04. Pokój 2
10,08 m²
05. Sypialnia
12,96 m²
06. Łazienka
4,90 m²
07. Pom. Tech.
3,48 m²
08. WC
2,34 m²
09. Wiatrołap
7,45 m²
10. Komunikacja
10,09 m²
‹
›
‹
›
×
‹
›
Rzut parteru
Parametry budynku
Powierzchnia podłóg
94,98 m²
Powierzchnia użytkowa
91,50 m²
Powierzchnia zabudowy
131,07 m²
Wymiary budynku
14,76 x 8,88 m
Minimalna działka
22,76 x 16,88 m
Kąt nachylania dachu
30°
Wysokość budynku
5,90 m
FORMULARZ KONTAKTOWY