Facebook-f
Instagram
kontakt@projektycieszyn.pl
+48 503 601 479
Strona główna
O nas
Usługi
Projekty
FAQ
Kontakt
QuickSmart Home
Zamarskie zacisze
Strona główna
O nas
Usługi
Projekty
Kontakt
FAQ
QuickSmart Home
Zamarskie Zacisze
Facebook-f
Instagram
kontakt@projektycieszyn.pl
+48 503 601 479
Strona główna
O nas
Usługi
Projekty
FAQ
Kontakt
QuickSmart Home
Zamarskie zacisze
Przestronny – 152,57 m²
Home
portfolio
Przestronny – 152,57 m²
Parter + piętro
Powierzchnia całkowita
213,95 m²
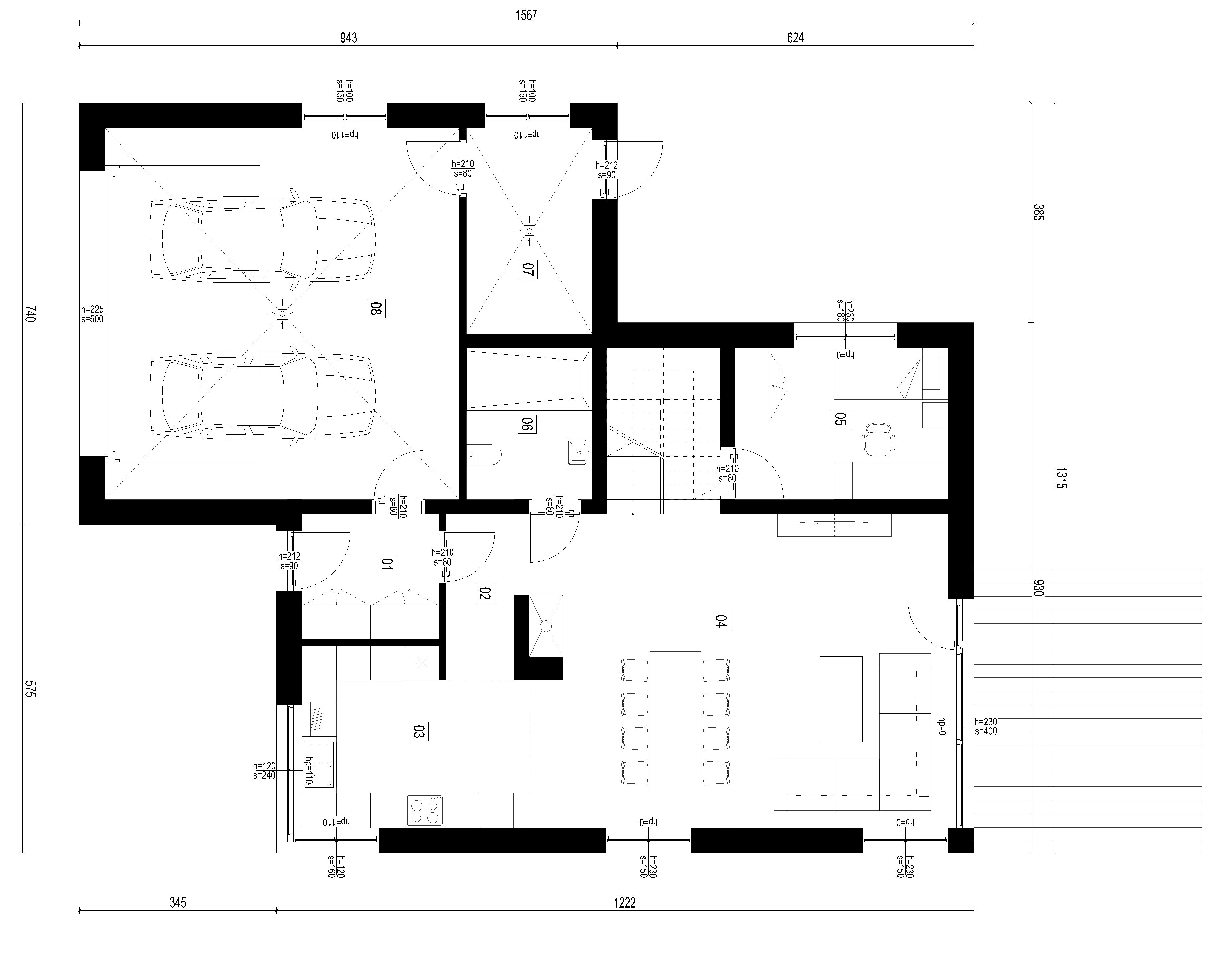
3. Wiatrołap
5,28 m²
4. Komunikacja
3,86 m²
5. Kuchnia
11,68 m²
6. Salon + jadalnia
40,43 m²
7. Wiatrołap 2
9,91 m²
8. WC
5,83 m²
9. Kotłownia
7,90 m²
10. Garaż
40,37 m²
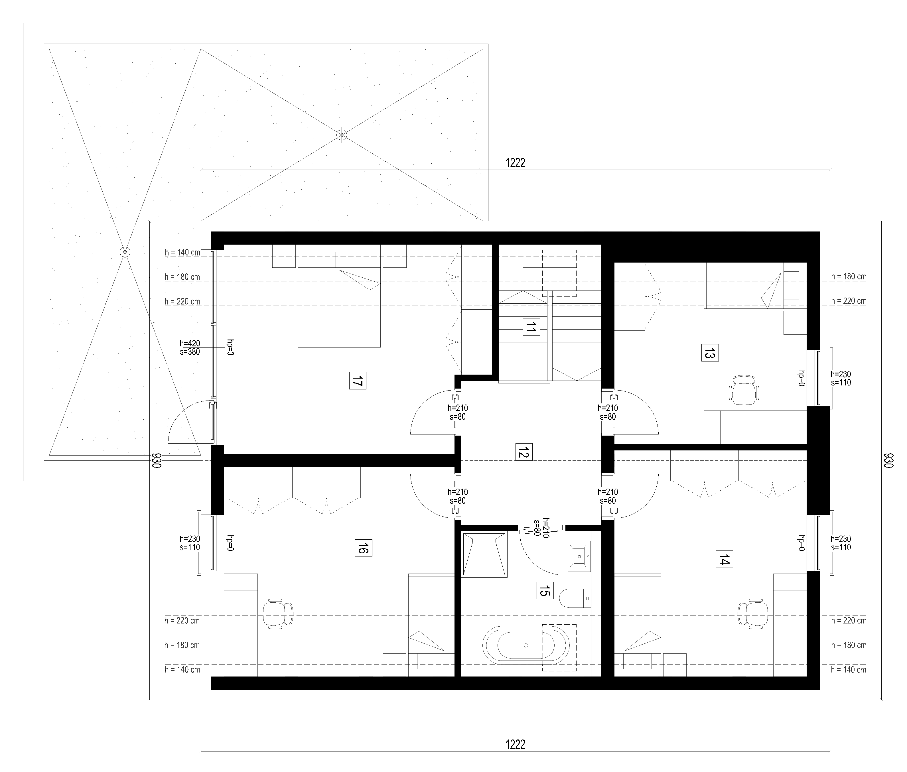
11. Schody
5,30 m²
12. Komunikacja
7,64 m²
13. Pokój 1
13,20 m²
14. Pokój 2
16,46 m²
15. Łazienka
7,73 m²
16. Pokój 3
18,26 m²
17. Pokój 4
20,10 m²
‹
›
‹
›
×
‹
›
Rzut parteru
Rzut piętra
Parametry budynku
Powierzchnia podłóg
213,95 m²
Powierzchnia użytkowa
152,75 m²
Powierzchnia zabudowy
162,20 m²
Wymiary budynku
15,67 x 13,15 m
Minimalna działka
23,67 x 21,15 m
Kąt nachylania dachu
42°
Wysokość budynku
9,30 m
FORMULARZ KONTAKTOWY