Facebook-f
Instagram
kontakt@projektycieszyn.pl
+48 503 601 479
Strona główna
O nas
Usługi
Projekty
FAQ
Kontakt
QuickSmart Home
Zamarskie zacisze
Strona główna
O nas
Usługi
Projekty
Kontakt
FAQ
QuickSmart Home
Zamarskie Zacisze
Facebook-f
Instagram
kontakt@projektycieszyn.pl
+48 503 601 479
Strona główna
O nas
Usługi
Projekty
FAQ
Kontakt
QuickSmart Home
Zamarskie zacisze
Fagino
Home
portfolio
Fagino
Parter + piętro
Powierzchnia całkowita
109,55 m²
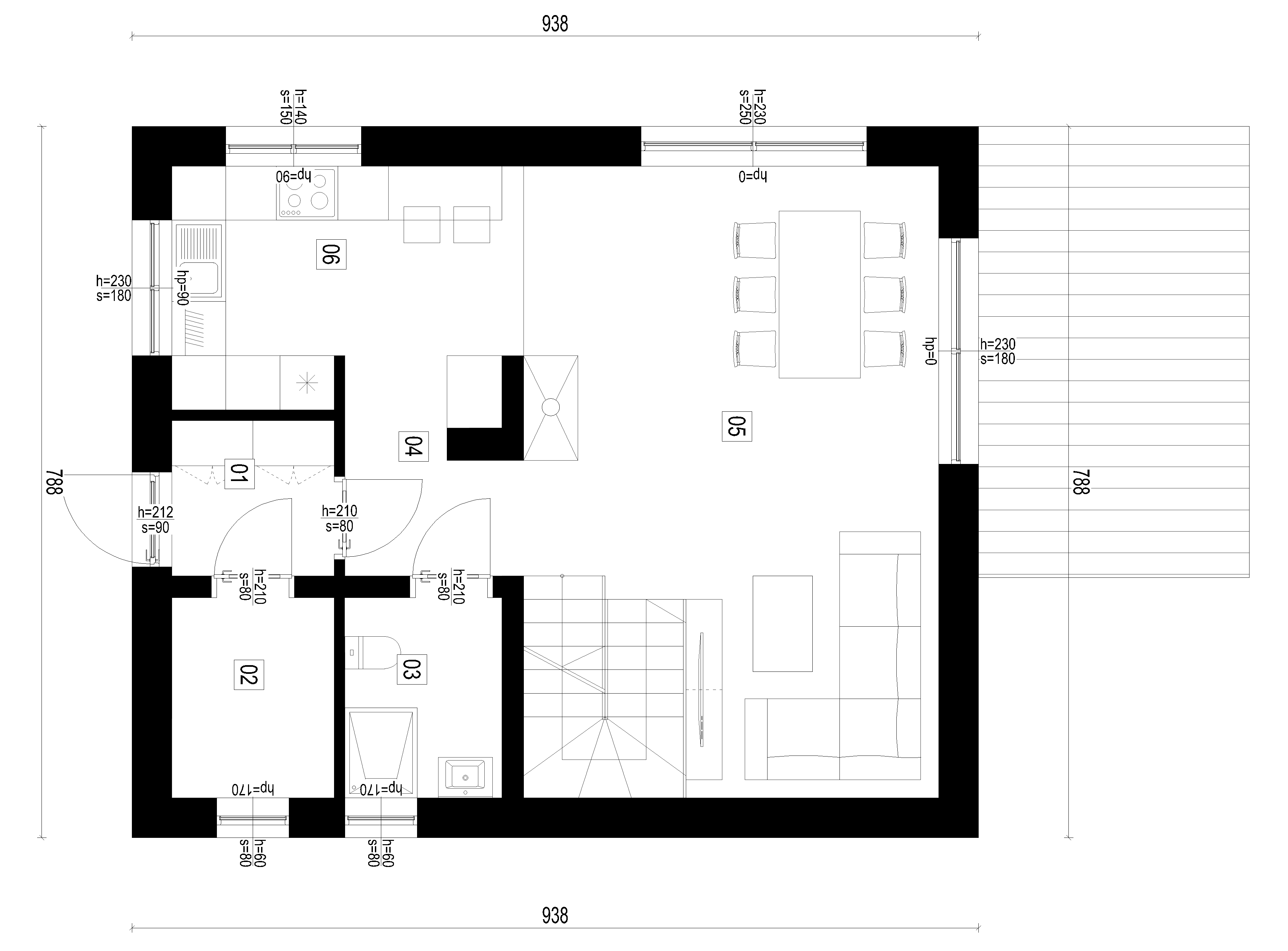
01. Wiatrołap
3,10 m²
02. Pom. techniczne
4,00 m²
03. Łazienka
3,86 m²
04. Korytarz
4,33 m²
05. Pokój + jadalnia
28,00 m²
06. Kuchnia
9,76 m²
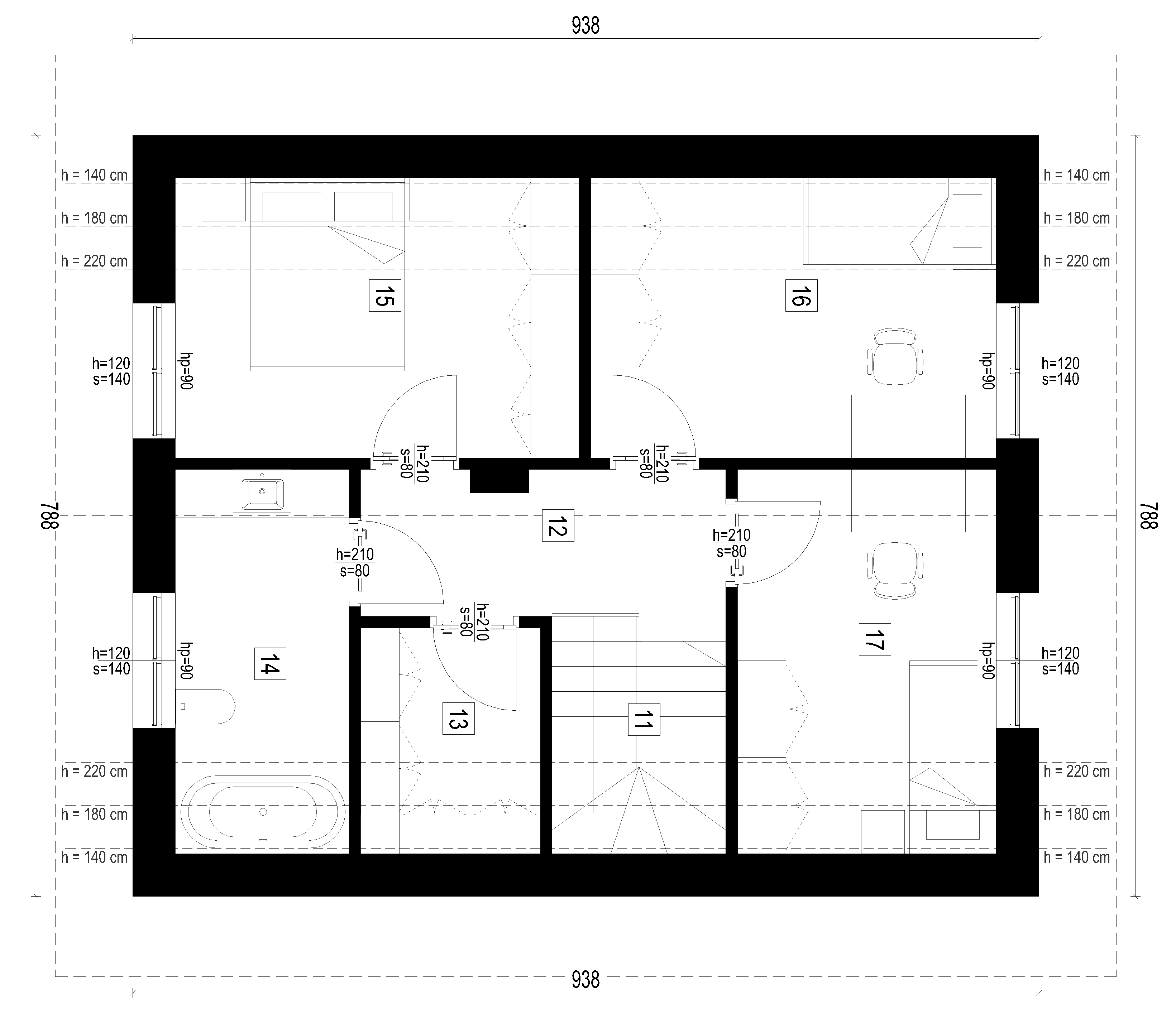
11. Schody
4,19 m²
12. Komunikacja
5,83 m²
13. Garderoba
3,42 m²
14. Łazienka
6,26 m²
15. Pokój 1
12,12 m²
16. Pokój 2
12,18 m²
17. Pokój 3
10,67 m²
‹
›
‹
›
×
‹
›
Rzut parteru
Rzut piętra
Parametry budynku Fagino
Powierzchnia podłóg
109,55 m²
Powierzchnia użytkowa
98,19 m²
Powierzchnia zabudowy
73,91 m²
Wymiary budynku
7,88 x 9,38 m
Minimalna działka
15,88 x 17,38 m
Kąt nachylania dachu
40°
Wysokość budynku
7,90 m
FORMULARZ KONTAKTOWY