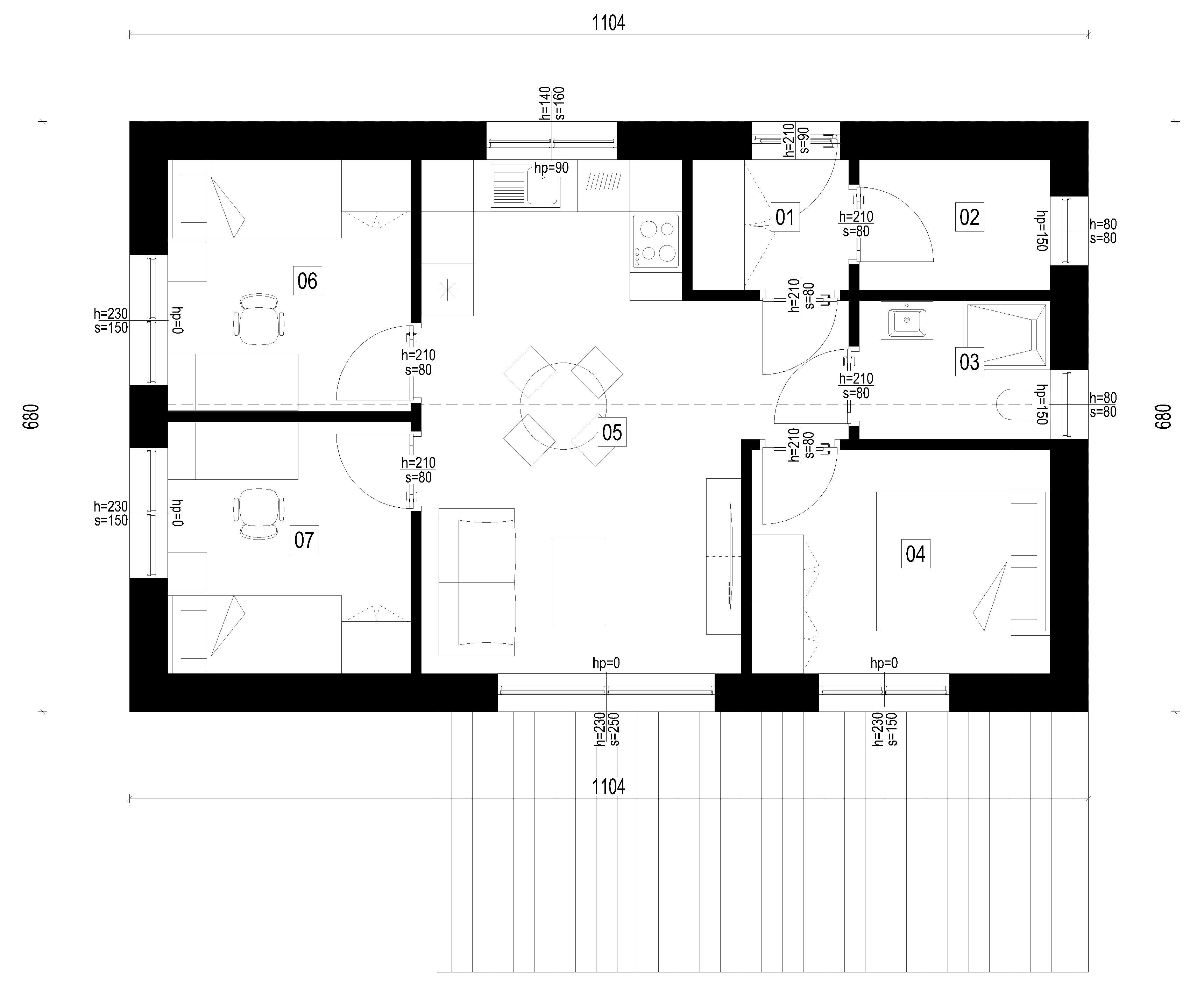
Parter

Powierzchnia całkowita 57,31 m²
01. Wiatrołap2,70 m²
02. Pom. Tech.3,30 m²
03. Łazienka3,52 m²
04. Sypialnia8,88 m²
05. Salon + kuchnia22,67 m²
06. Pokój 18,12 m²
07. Pokój 28,12 m²
 Rzut parteru

Parametry budynku Gravina

Powierzchnia podłóg 57,31 m²
Powierzchnia użytkowa 54,01 m²
Powierzchnia zabudowy 75,07 m²
Wymiary budynku 11,04 x 6,8 m
Minimalna działka 19,04 x 14,8 m
Kąt nachylania dachu 35°
Wysokość budynku 5,80 m