Facebook-f
Instagram
kontakt@projektycieszyn.pl
+48 503 601 479
Strona główna
O nas
Usługi
Projekty
FAQ
Kontakt
QuickSmart Home
Zamarskie zacisze
Strona główna
O nas
Usługi
Projekty
Kontakt
FAQ
QuickSmart Home
Zamarskie Zacisze
Facebook-f
Instagram
kontakt@projektycieszyn.pl
+48 503 601 479
Strona główna
O nas
Usługi
Projekty
FAQ
Kontakt
QuickSmart Home
Zamarskie zacisze
Salina
Home
portfolio
Salina
Parter + piętro
Powierzchnia całkowita
126,30 m²
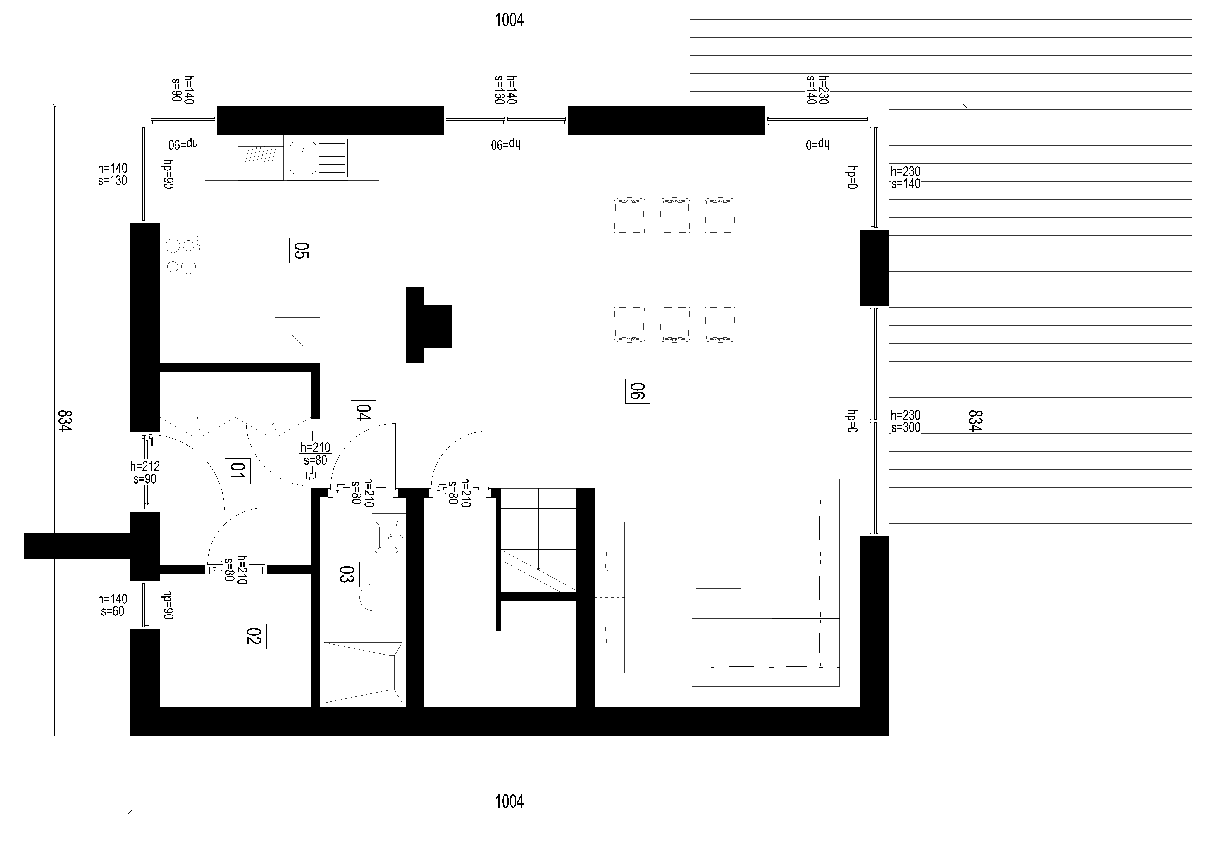
01. Wiatrołap
5,12 m²
02. Pom. tech.
3,50 m²
03. Łazienka
3,16 m²
04. Komunikacja
2,30 m²
05. Kuchnia
10,29 m²
06. Salon + jadalnia
36,84 m²
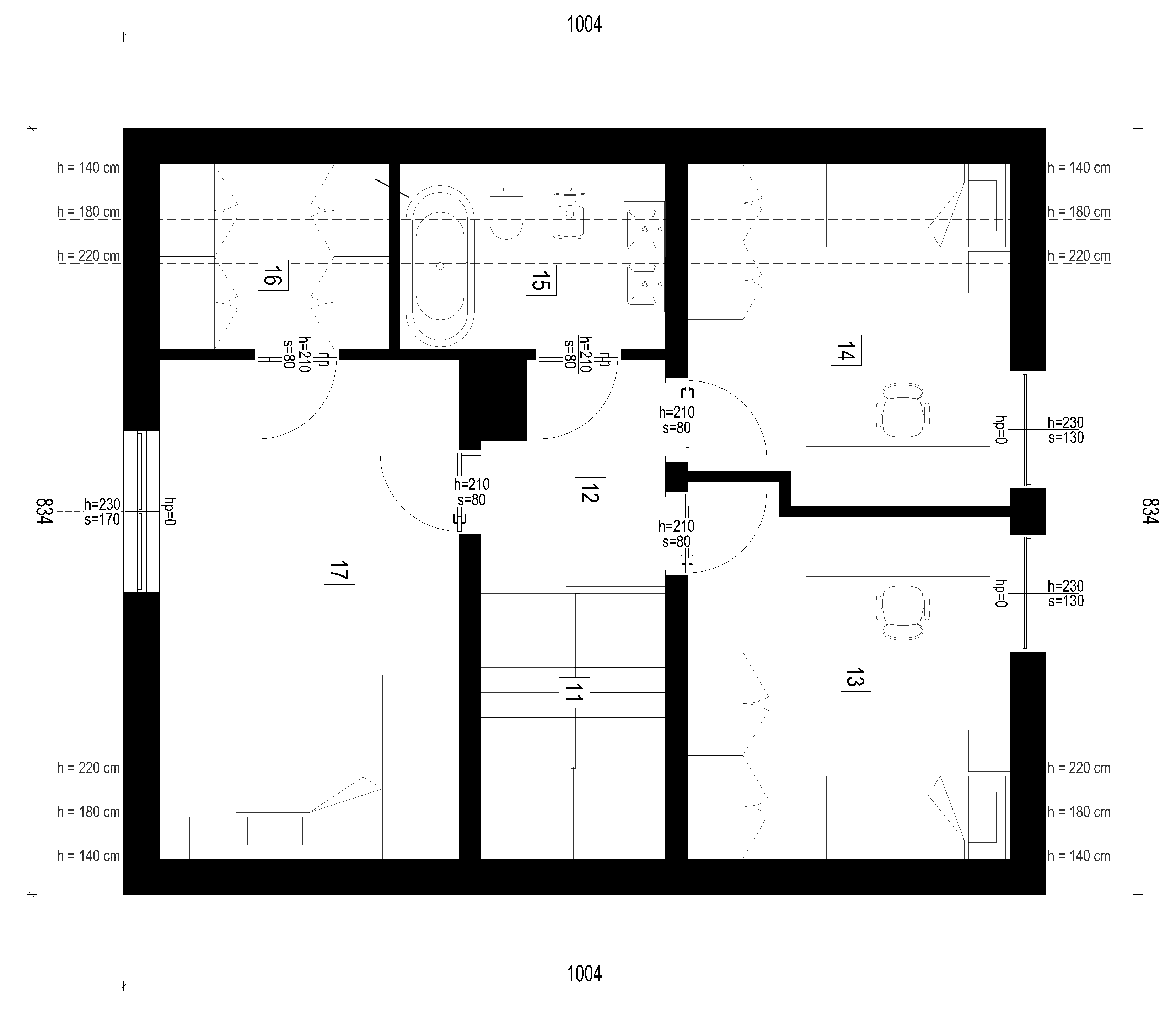
11. Schody
5,85 m²
12. Komunikacja
4,63 m²
13. Pokój 1
13,44 m²
14. Pokój 2
12,61 m²
15. Łazienka 2
5,87 m²
16. Garderoba
5,03 m²
17. Pokój 3
17,70 m²
‹
›
‹
›
×
‹
›
Rzut parteru
Rzut piętra
Parametry budynku Salina
Powierzchnia podłóg
126,30 m²
Powierzchnia użytkowa
113,35 m²
Powierzchnia zabudowy
90,70 m²
Wymiary budynku
8,34 x 10,04 m
Minimalna działka
16,34 x 18,04 m
Kąt nachylania dachu
40°
Wysokość budynku
8,47 m
FORMULARZ KONTAKTOWY